Seite 1 von 1
Gleichrichter Kabel anschließen hilfe
Verfasst: Fr 22. Sep 2023, 19:20
von Igge
Hallo wir haben einen Gleichrichter der angeschlossenen werden muss.
Auto ligier Nova 500.
Kabel am Richter sind
1 Schwarz
1 Rot
1 Dreierstecker mit gelben Kabeln
Schwarzer Anschluss haben wir gefunden der Dreierstecker mit den gelben Kabel ist auch angeschlossen nur das rote Kabel ist uns ein Rätsel. Das hing einfach nur Rum.
Wir vermuten Mal das es zur Batterie geht aber sicher sind wir uns nicht.
Re: Gleichrichter Kabel anschließen hilfe
Verfasst: Fr 22. Sep 2023, 22:35
von Fichte
Hey, das elektrische Schema ist bei den Gleichrichtern eigentlich immer gleich, aus diesem Handbuch zu ersehen (S. 90 ff):
https://www.vspieces.com/index.php?cont ... achment=27

- IMG_3605.jpeg (130.8 KiB) 4450 mal betrachtet
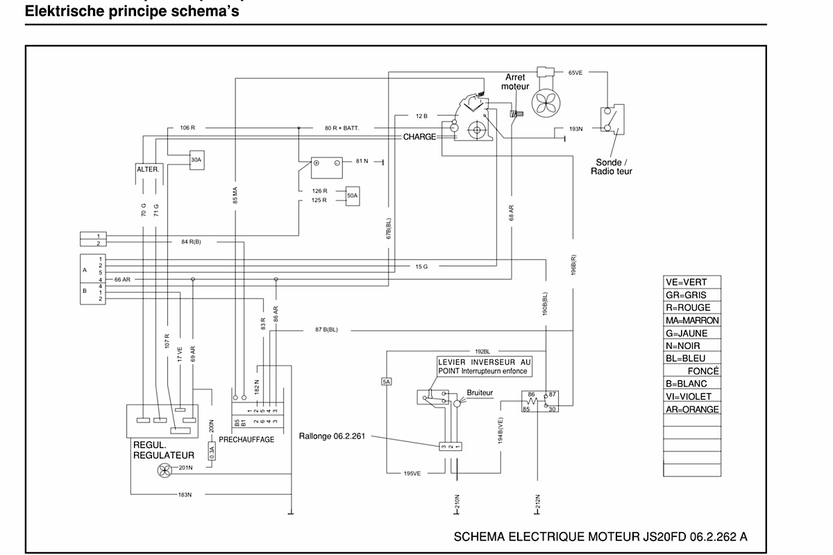
Es kommt jedoch auf den jeweilig verbauten Regler an, hier wird Rot zum Anlasser fortgeführt (Lombardini Motor):

- IMG_3477.png (1.01 MiB) 4450 mal betrachtet
Weiter belesen kannst Du Dich in diesen Threads:
Der „Regler“
Reglerarten (Lombardini):
viewtopic.php?f=11&t=9626
Reglerarten (Morini, Dynastarter):
viewtopic.php?f=11&t=9627
Regler der Lichtmaschine:
viewtopic.php?f=9&t=3827
Ausführlich zum „Regler der Lichtmaschine“:
viewtopic.php?f=9&t=8613
Unterschiedliche Reglerarten:
viewtopic.php?f=9&t=9445
Laderegler Motoplat:
viewtopic.php?f=11&t=6060
Der Regler (Arten):
viewtopic.php?f=11&t=5316
Eigenbau eines Reglers:
viewtopic.php?f=11&t=3259
Spannungsregler im Microcar Virgo:
viewtopic.php?f=11&t=10620
Re: Gleichrichter Kabel anschließen hilfe
Verfasst: Sa 23. Sep 2023, 19:46
von rolf.g3
Fichte hat geschrieben: ↑Fr 22. Sep 2023, 22:35
Es kommt jedoch auf den jeweilig verbauten Regler an, hier wird Rot zum Anlasser fortgeführt (Lombardini Motor):
Ja, denke ich auch: Rot zum Anlasser zur Batterie ...
gr